
The forged steel gate valves are on-off valves manufactured according to API, ANSI, ASME standard, for industrial applications. The forged steel gate valves are manufactured with: outside screw and yoke, bolted or welded bonnet, rising stem, flanged ends. The body of the valve is in A105/F6, other materials are available upon request. Handwheel operated.
Design & Manufacture: API 602, BS 5352, ANSI/ASME B16.34
Test & Inspect: API 598
Marking: MSS-SP-25
Face to Face: ANSI/ASME B 16.10
Flanges End: ANSI/ASME B16.5
Butt Welded Ends: ANSI/ASME B16.25
|
Body |
A105(N), A182 F22, A182 F304(L), A182 F316(L) |
|
Stem |
A182 F6a, A182 F304, A182 F304(L), A182 F316(L) |
|
Disc |
A276 420, A276 304(L), A276 316(L) |
|
Flange |
A105, F11, F304(L), F316(L) |
|
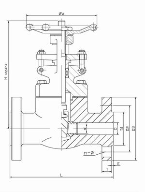
NPS |
L mm |
H mm |
W mm |
Weight kg |
|
1/2¡± |
108 |
158 |
100 |
4.5 |
|
3/4¡± |
117 |
169 |
100 |
5.2 |
|
1¡± |
127 |
197 |
125 |
8.2 |
|
1 1/4¡± |
140 |
236 |
160 |
11.5 |
|
1 1/2¡± |
165 |
246 |
180 |
12.5 |
|
2¡± |
178 |
283 |
200 |
20.3 |