Click for technic details

Pressure: 150lbs, 300lbs and 600lbs
Standard: ANSI B 16.5
Material: carbon steel: A105
|
Size |
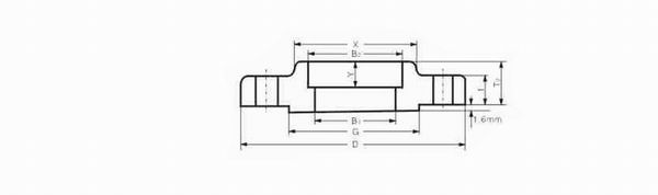
D |
G |
X |
t |
B 1 |
B2 |
T 2 |
Y |
Weight |
|
150 lbs |
|
1/2¡± |
89 |
35.1 |
30.2 |
11.2 |
15.7 |
22.4 |
15.7 |
9.7 |
0.47 |
|
3/4¡± |
99 |
42.9 |
38.1 |
12.7 |
20.8 |
27.2 |
15.7 |
11.2 |
0.76 |
|
1¡± |
108 |
50.8 |
49.3 |
14.2 |
26.7 |
34.5 |
17.5 |
12.7 |
0.87 |
|
1 1/2¡± |
117 |
63.5 |
58.7 |
15.7 |
35.1 |
43.2 |
20.6 |
14.2 |
1.43 |
|
1 1/4¡± |
127 |
73.2 |
65.0 |
17.5 |
40.9 |
49.5 |
22.4 |
15.7 |
1.45 |
|
2¡± |
152 |
91.9 |
77.7 |
19.1 |
52.6 |
62.0 |
25.4 |
17.5 |
2.33 |
|
2 1/2¡± |
178 |
104.6 |
90.4 |
22.4 |
62.7 |
74.7 |
28.4 |
19.1 |
3.55 |
|
3¡± |
191 |
127.0 |
108.0 |
23.9 |
78.0 |
90.7 |
30.2 |
50.6 |
4.15 |
|
3 1/2¡± |
216 |
139.7 |
122.2 |
23.9 |
90.2 |
103.4 |
31.8 |
22.4 |
5.00 |
|
4¡± |
229 |
157.2 |
134.9 |
23.9 |
102.4 |
116.1 |
33.3 |
23.9 |
5.99 |
|
5¡± |
254 |
185.7 |
163.6 |
23.9 |
128.3 |
143.8 |
36.6 |
23.9 |
6.96 |
|
6¡± |
279 |
215.9 |
192.0 |
25.4 |
154.3 |
170.7 |
39.6 |
26.9 |
8.41 |
|
8¡± |
343 |
269.7 |
246.1 |
28.4 |
202.7 |
221.5 |
44.5 |
31.8 |
13.93 |
|
10¡± |
406 |
323.9 |
304.8 |
30.2 |
254.5 |
276.4 |
49.3 |
33.3 |
19.50 |
|
12¡± |
783 |
381.0 |
365.3 |
31.8 |
304.8 |
327.2 |
55.6 |
39.6 |
29.03 |
|
14¡± |
533 |
412.8 |
400.1 |
35.1 |
336.6 |
359.2 |
57.2 |
41.4 |
38.56 |
|
16¡± |
597 |
469.9 |
457.2 |
36.6 |
387.1 |
410.5 |
63.5 |
44.5 |
47.37 |
|
18¡± |
635 |
533.4 |
505.0 |
39.6 |
438.2 |
461.8 |
68.3 |
49.3 |
58.72 |
|
20¡± |
699 |
584.2 |
558.8 |
42.9 |
489.0 |
513.1 |
73.2 |
54.1 |
77.81 |
|
24¡± |
813 |
692.2 |
663.4 |
47.8 |
590.6 |
616.0 |
82.6 |
63.5 |
100.75 |